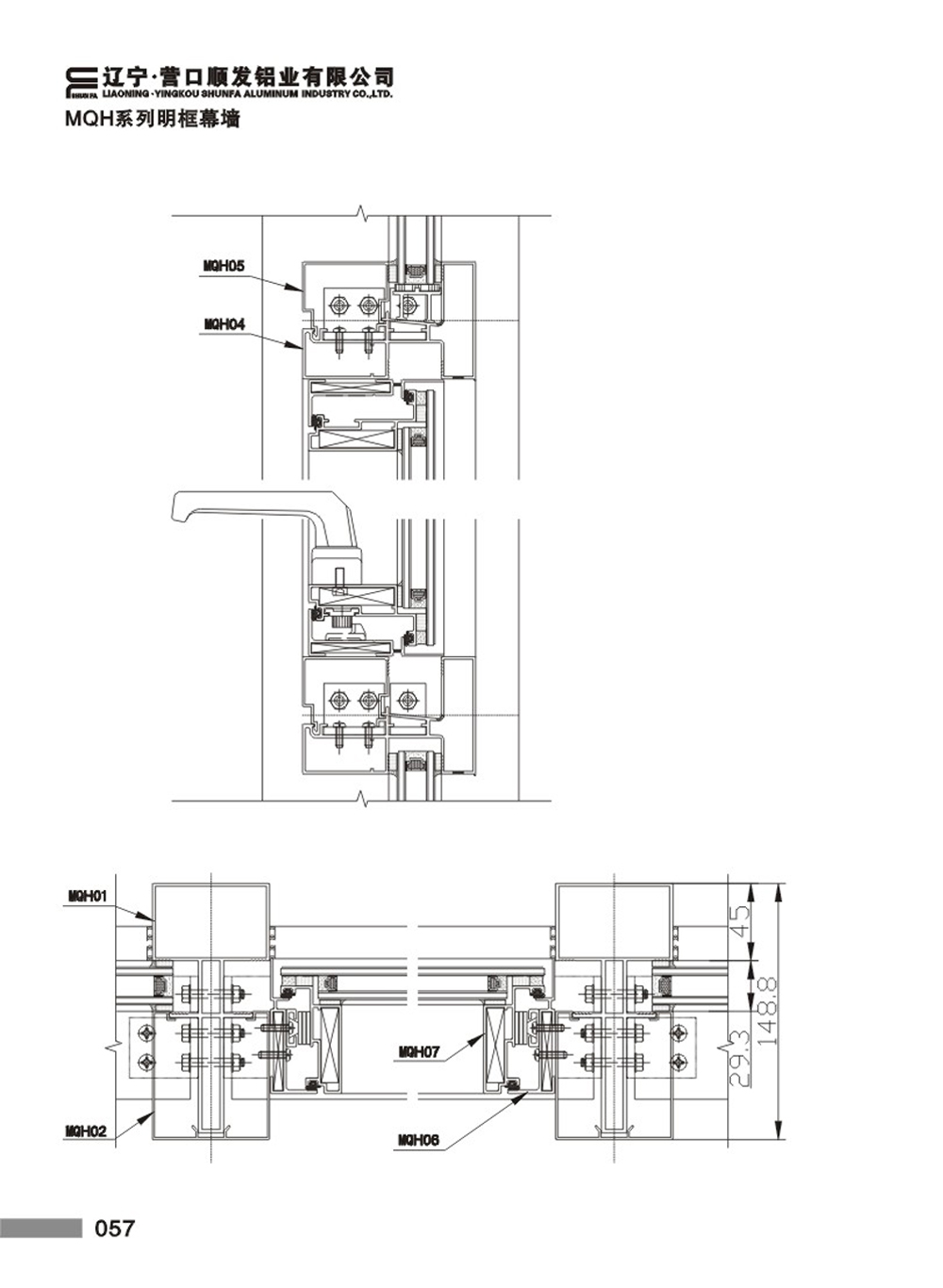
MQH系列幕墙

返回

移动端