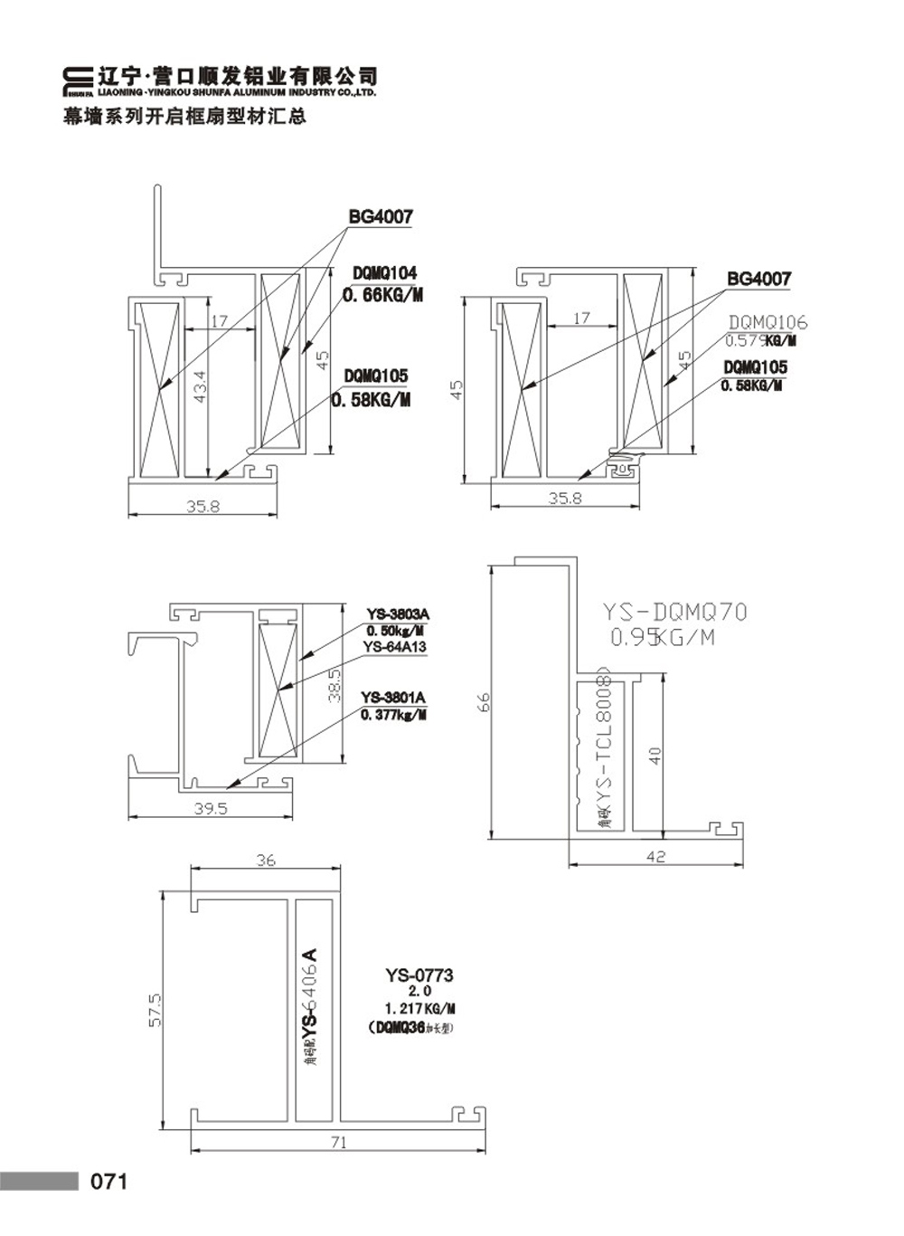
开启框扇汇总

返回

移动端