首页
关于我们
产品展示
技术图纸
新闻中心
联系我们
幕墙系列产品
首页
>
技术图纸
>
幕墙系列产品
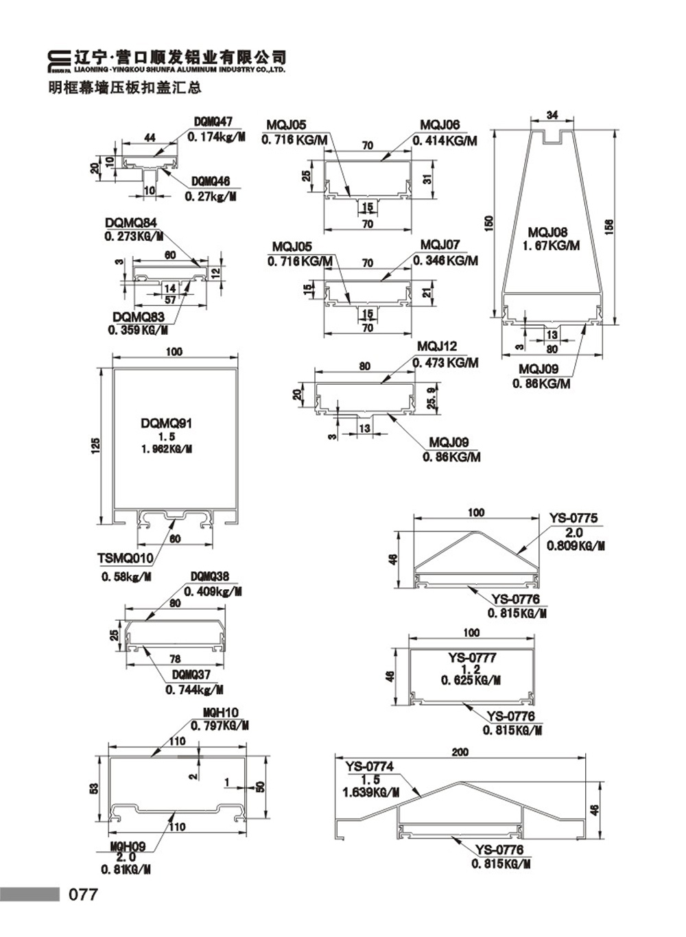
明框幕墙压板扣盖汇总
相关产品 /
Related products
其它系列型材汇总
其它系列型材汇总
HRMO系列幕墙
HRMO系列幕墙
返回
0417-3188188
移动端