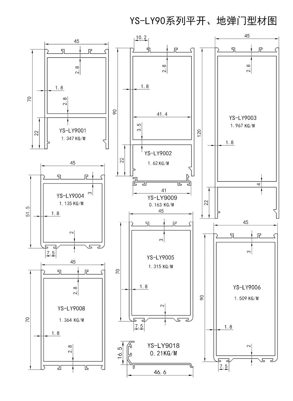
901--S45----BH1.8------YS-LY90平开、地弹门

返回

移动端