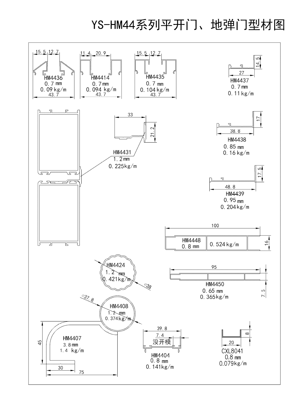
903--S44----BH1.35;1.65------YS-HM44系列平开门、地弹门

返回

移动端