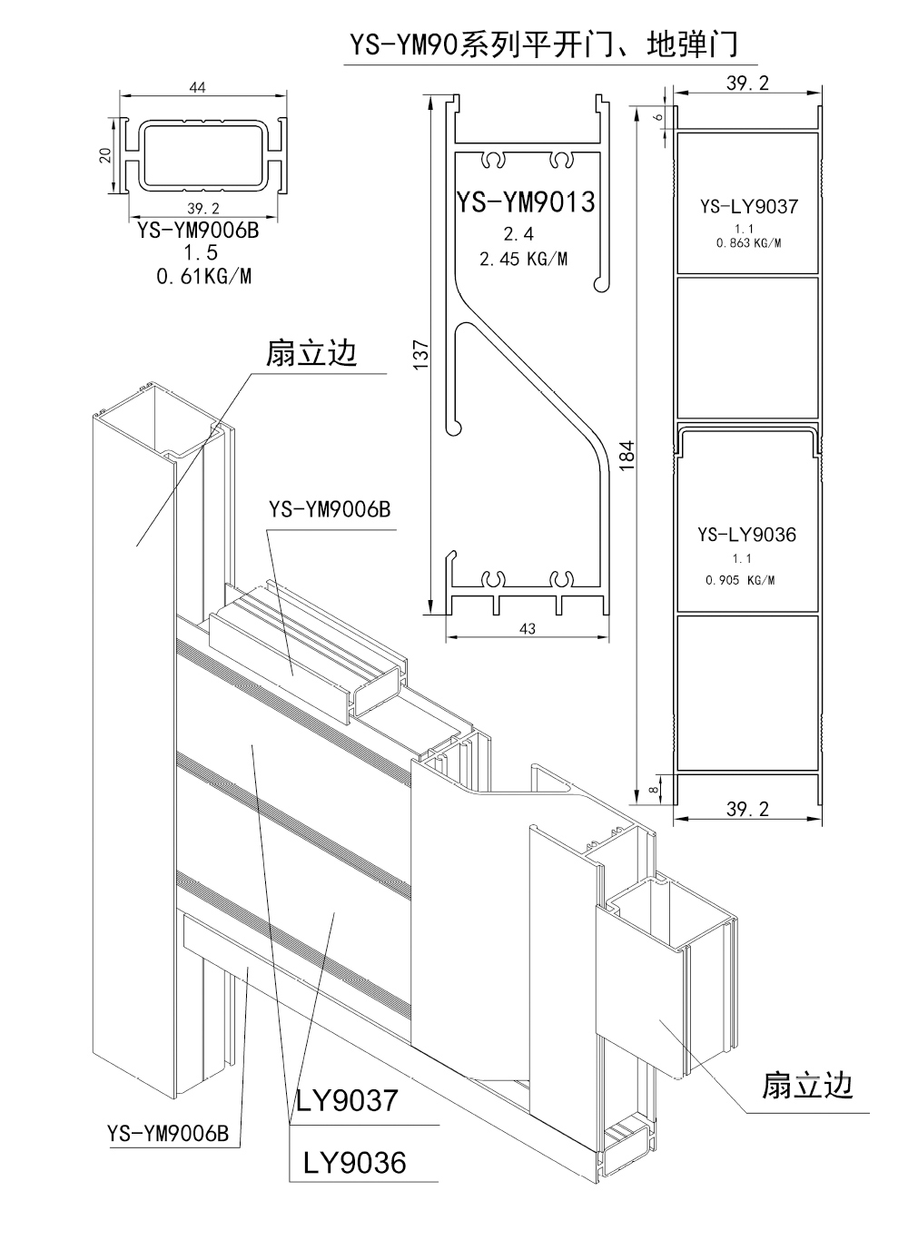
906--S44.4----BH1.9;2.8------YS-YM90系列平开门、地弹门

返回

移动端